Piazzetta – итальянская фирма, предлагающая камины из мрамора, в которых горят настоящие дрова, освещая комнату живым пламенем, обогревая её.
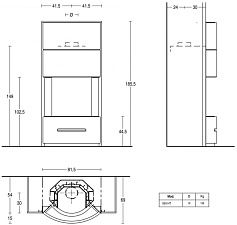
Мраморные дровяные камины Piazzetta выполнены в классической манере, они прекрасно подойдут как для загородного дома, так и для квартиры, поскольку не громоздки и элегантны. Особенно мало места занимают угловые камины Piazzetta, дополняющие интерьер изысканной вертикалью белого мрамора и живого пламени.
В моделях Piazzetta используются различные сорта мрамора. Ряд моделей декорирован кирпичной кладкой из мрамора. Камины Piazzetta выполнены в традиционной для адриатического стиля бело-бежевой, бело-коричневой гамме. Лёгкость форм делает камины Piazzetta украшением любой виллы или пентхауза – но также и более скромных жилищ. Камины Piazzetta элегантны и скромны, но эта скромность говорит за себя лучше всякой роскоши.
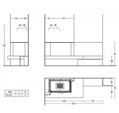
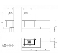
Компания Piazzetta производит также камины ультрасовременных форм, есть и минималистические модели: например, встроенные камины, которые представляют собой ровное прямоугольное стекло в стене, нише или колонне, за которым бьётся яркое пламя.
